Du dessin à l'espace

Le dessin ne s’arrête pas à la feuille.

Il peut devenir un outil pour penser un espace, en révéler le potentiel ou transformer son ambiance.

A travers différents projets, j’explore cette transition du dessin vers le lieu réel.

Imaginer et structurer l'espace

Plans d'aménagement

A partir de l’existant, je propose des plans d’aménagement intérieur pour repenser les usages et redonner une nouvelle vie aux espaces. 

Mon approche associe plans techniques et plans d’ambiance, afin de traduire à la fois l’organisation de l’espace et son atmosphère, et de permettre aux usagers d’en percevoir les usages, les matières et les volumes. 

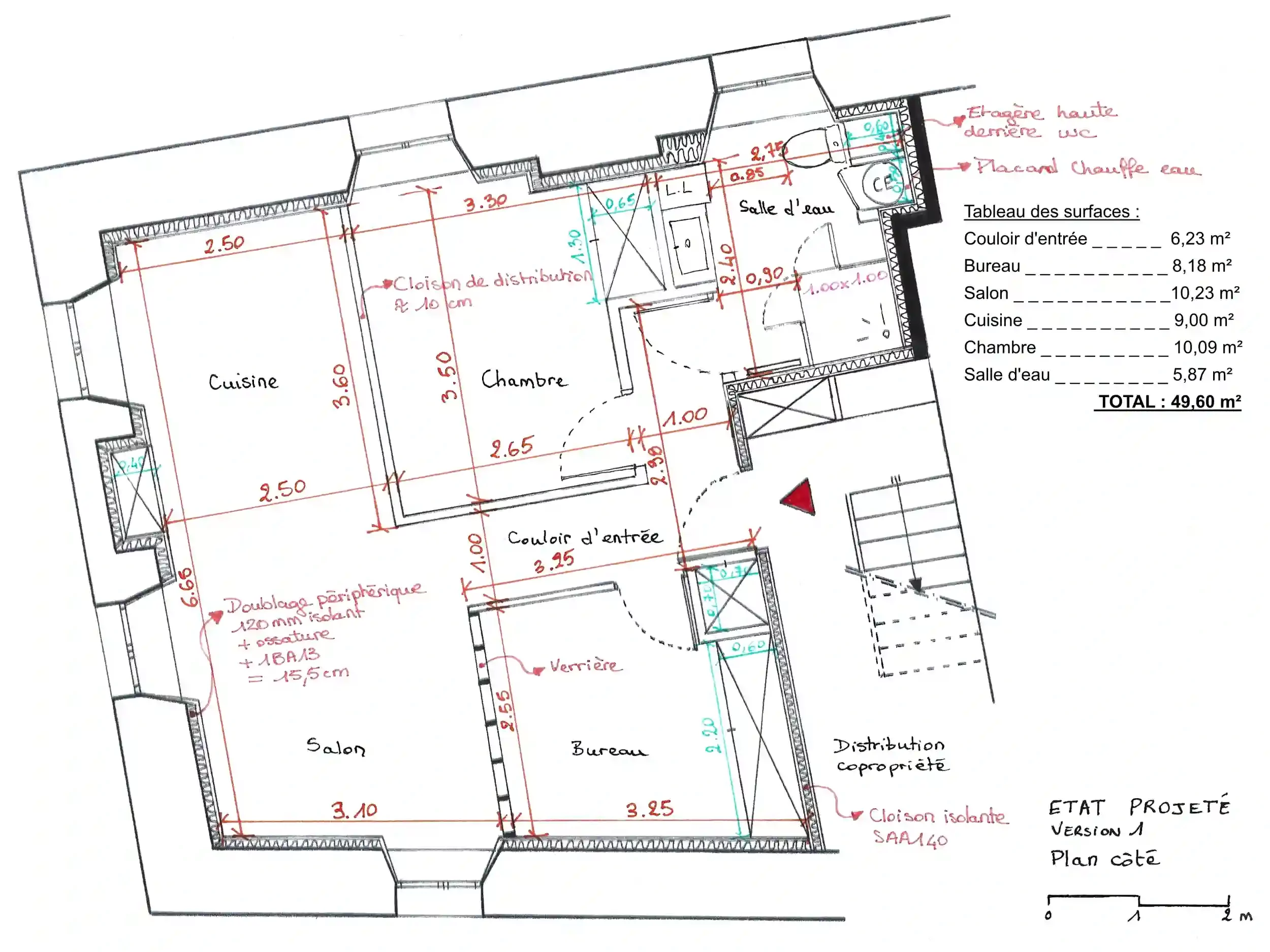
Plan technique d'aménagement intérieur

Plan technique de l'aménagement d'un appartement

Plan d'ambiance intérieure

Plan d'ambiance de l'aménagement d'un appartement

Dessiner dans l'espace

Fresques murales

Le dessin est réalisé directement sur le mur. 

A partir d’un croquis préparatoire, la fresque se développe à l’échelle du lieu et vient dialoguer avec son architecture. 

Elle permet de transformer une ambiance, de révéler un volume ou de donner une identité à un espace. 

Croquis d'intention de fresque murale pour chambre d'enfant
Visuel validé pour fresque murale d'une chambre d'enfant
Fresque murale "la forêt et ces animaux"

Croquis d'intention de fresque murale pour chambre d'enfant

Visuel validé pour fresque murale d'une chambre d'enfant

Fresque murale "la forêt et ces animaux"

Intervenir de manière éphémère

Fresques sur vitrines

Sur vitrine, le dessin devient une intervention plus spontanée et temporaire. 

Du croquis à la réalisation, il attire le regard, anime un lieu et s’adapte aux saisons, aux événements ou à l’identité d’un lieu. 

Dessin de référence pour une fresque sur vitrine
Fresque sur vitrine du Très Petit Café, Murat (Cantal 15)
Fresque sur vitrine du Très Petit Café, Murat (Cantal 15)

Dessin de référence pour une fresque sur vitrine

Réalisation d'une fresque sur vitrine

Fresque sur vitrine du Très Petit Café, Murat (Cantal 15)

Pour toutes demandes de renseignements 

Retour en haut